Elevation drawing of a house with detail dimension in dwg file
Description
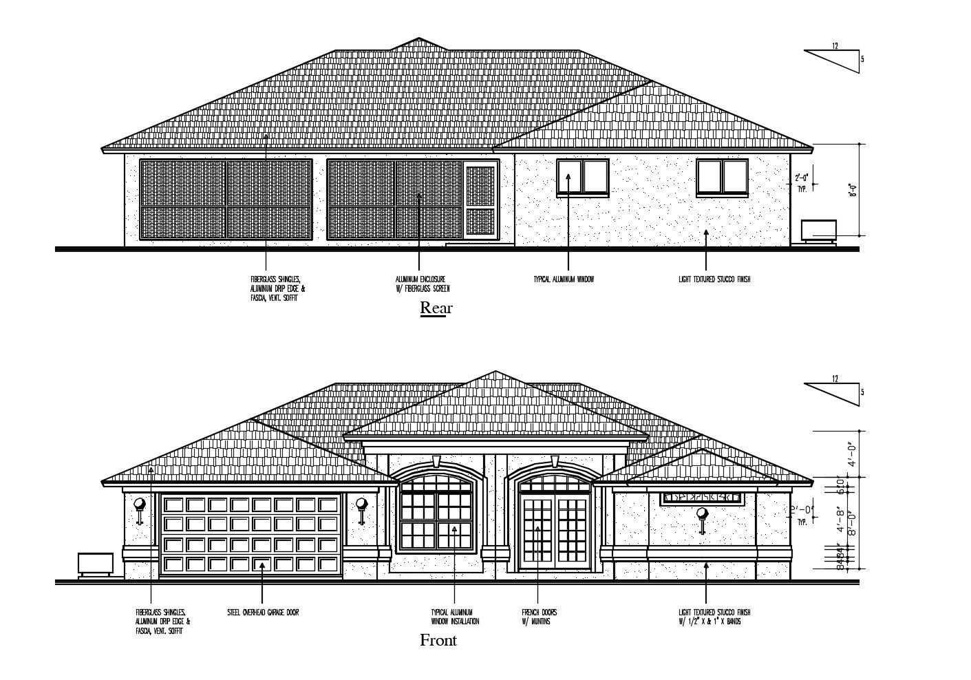
Elevation drawing of a house with detail dimension in dwg file which provides detail of front elevation, rear elevation, detail of floor level, detail of doors and windows, etc.

Uploaded by:
Eiz
Luna

