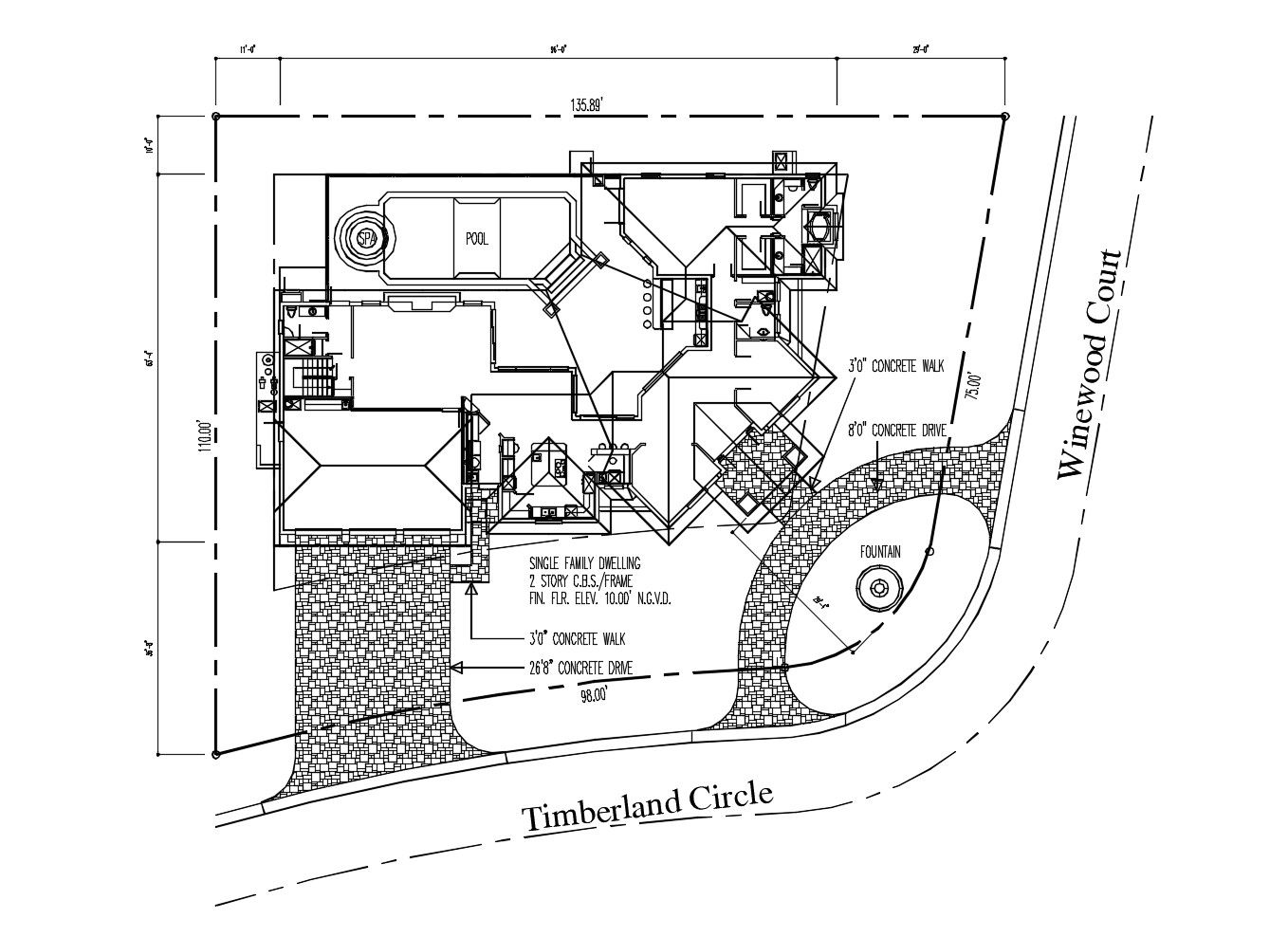
Site plan of single family house 135.89' x 110.0' with detail dimension in AutoCAD
Description
Site plan of single family house 135.89' x 110.0' with detail dimension in AutoCAD which provide detail of hall, bedroom, kitchen, WC and bath, detail of concrete walk, concrete drive, pool, fountain, etc.

Uploaded by:
Eiz
Luna

