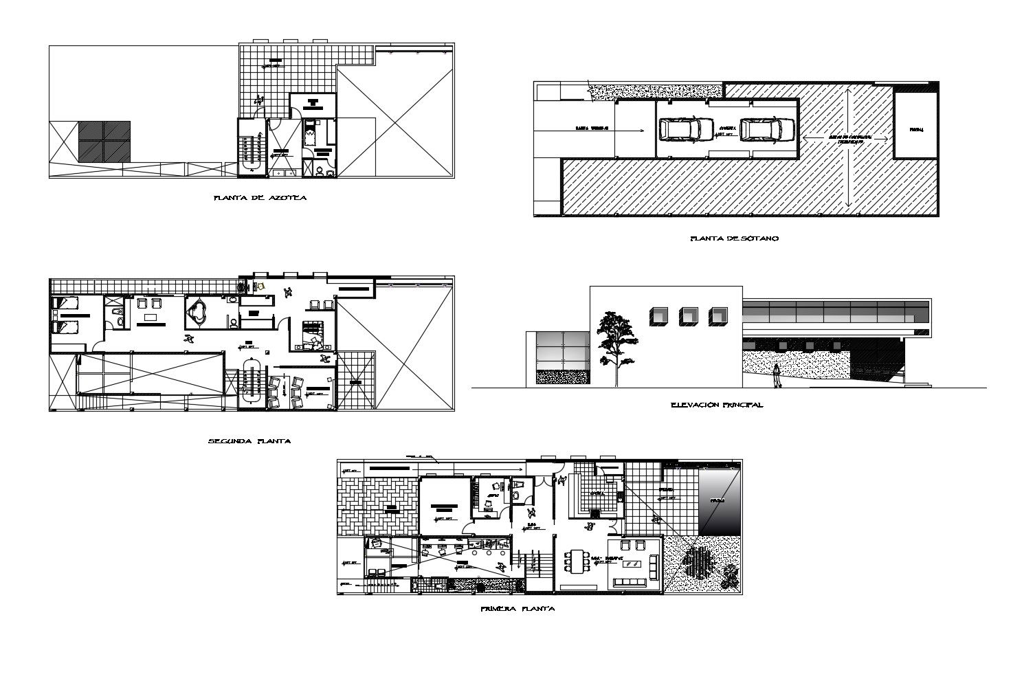
Drawing of Single storey house with elevation in AutoCAD
Description
Drawing of Single storey house with elevation in AutoCAD Which includes an office area, drawing room, audio room, entertainment room, reception, meeting room, conference room, parking area, terrace area, garden area

Uploaded by:
Eiz
Luna

