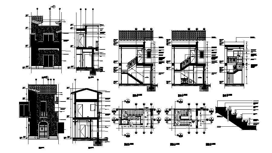
Staircase detail plan with detail dimension in AutoCAD
Description
Staircase detail plan with detail dimension in AutoCAD which provide detail of different section, detail dimension of wood handrail, interior design for interior staircase railing, plaster level, slab details, etc.

Uploaded by:
Eiz
Luna

