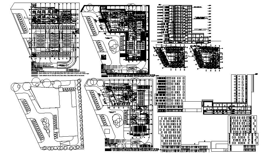
Architectural plan of 5-star hotel building with detail dimension in AutoCAD
Description
Architectural plan of the 5-star hotel building with detail dimension in AutoCAD which provide detail of different elevation and sections, detail of hall, lobby, waiting area, corridor, restaurant area, kitchen area, washroom and toilet, etc.

Uploaded by:
Eiz
Luna

