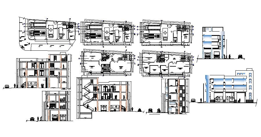
Architectural plan of the office building with elevation and section in AutoCAD
Description
Architectural plan of the office building with elevation and section in AutoCAD it includes detail of front elevation, side elevation, different section, detail of floor level, detail of hall, administration area, WC and bath, parking plan, etc.

Uploaded by:
Eiz
Luna

