Architectural plan of the bungalow with detail dimensions in dwg file
Description
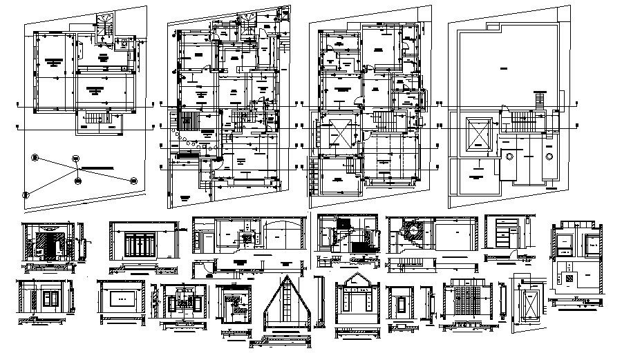
Architectural plan of the bungalow with detail dimensions in dwg file which provide detail of basement hall, utility, family lounge, bedroom, dining room, kitchen, children room, lobby, washroom, toilet, etc it also gives detail of wall details.

Uploaded by:
Eiz
Luna

