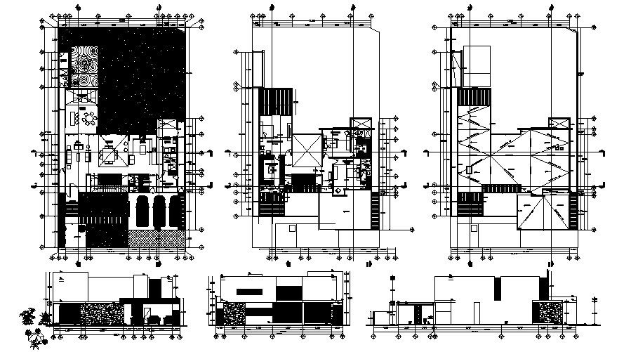
Bungalow plan 18.823mtr x 32.534mtr with elevation in AutoCAD
Description
Bungalow plan 18.823mtr x 32.534mtr with elevation in AutoCAD which includes detail of front elevation, back elevation, detail of drawing room, bedroom, kitchen, dining area, bathroom, toilet, garden area, etc.

Uploaded by:
Eiz
Luna
