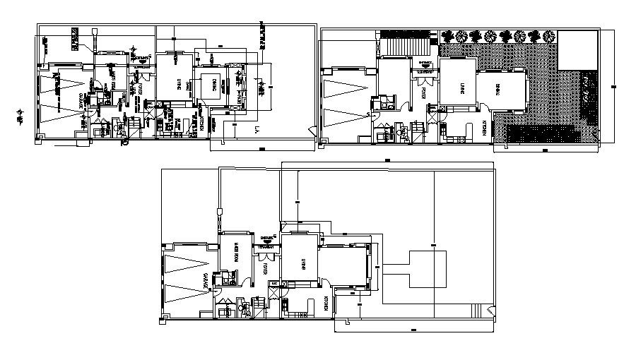
Residential apartment with detail dimension in AutoCAD
Description
Residential apartment with detail dimension in AutoCAD it includes kitchen, drawing room, bedroom, toilet, and utility area, maids room, etc it also gives detail of garden area, car parking.

Uploaded by:
Eiz
Luna

