Floor plan of the restaurant with detail dimension in dwg file
Description
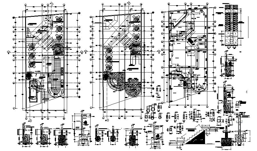
Floor plan of the restaurant with detail dimension in dwg file which provides detail of hall, mess area, kitchen, staircase area, car parking, washroom, toilet, etc it also gives detail of furniture, detail of column footing.

Uploaded by:
Eiz
Luna

