Plan of the hotel building with section details in AutoCAD
Description
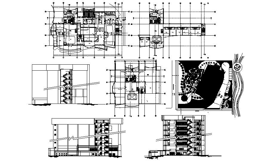
Plan of the hotel building with section details in AutoCAD which provide detail of hall, cafe area, waiting area, reception area, rooms, passage, washroom, toilet, etc it also gives full detail of furniture, detail of site plan.

Uploaded by:
Eiz
Luna

