Residential house drawing with construction detail in AutoCAD
Description
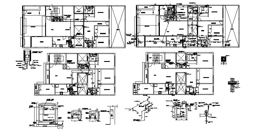
Residential house drawing with construction detail in AutoCAD it includes a drawing room, dining room, kitchen, bedroom, balcony, toilet, and wash area.

Uploaded by:
Eiz
Luna

Uploaded by:
Luna