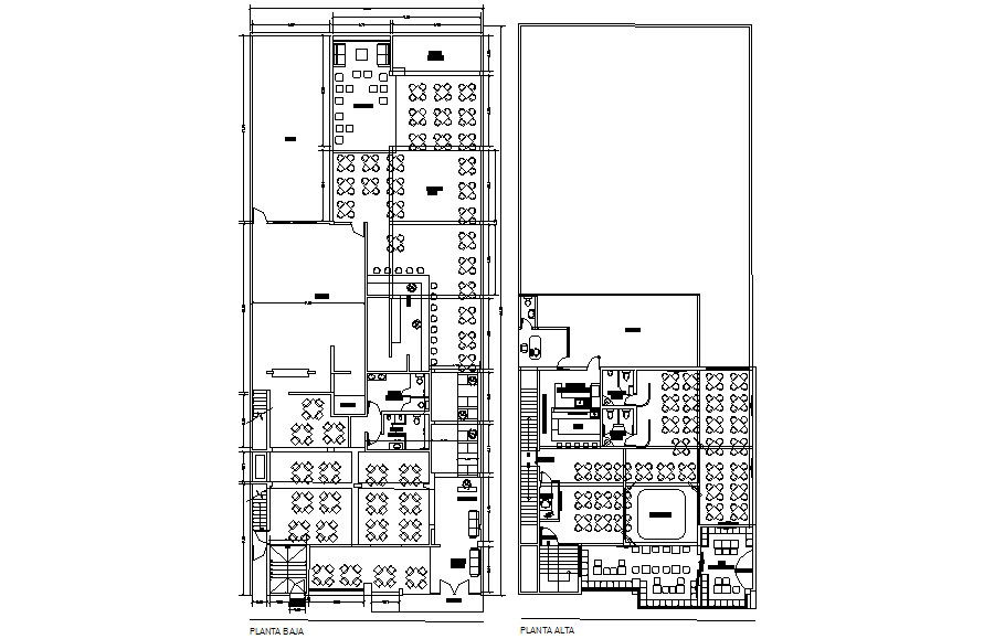
Plan of the restaurant with detail dimension in dwg file
Description
Plan of the restaurant with detail dimension in dwg file which includes detail of dining area, hall, passage, waiting area, reception area, kitchen, bathroom and toilet, etc it also gives detail of furniture.

Uploaded by:
Eiz
Luna

