Plan of the residential apartment with detail dimension in AutoCAD
Description
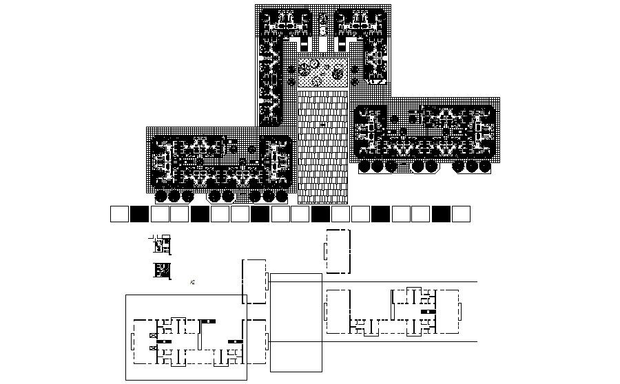
Plan of the residential apartment with detail dimension in AutoCAD which provide detail of drawing room, bedroom, kitchen with dining area, bathroom, toilet, garden area, etc it also gives detail of furniture.

Uploaded by:
Eiz
Luna
