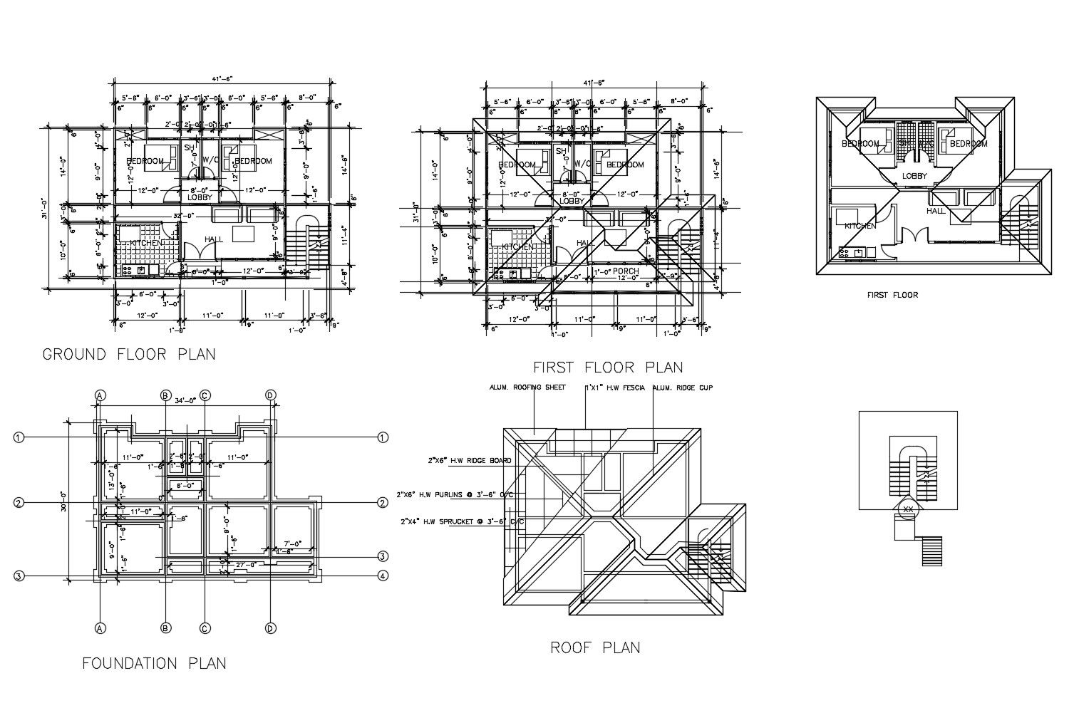
Floor plan of the house with detail dimension in AutoCAD
Description
Floor plan of the house with detail dimension in AutoCAD which provide detail of hall, bedroom, kitchen, dining area, bathroom, toilet, etc it also includes detail of foundation plan, roof plan.

Uploaded by:
Eiz
Luna
