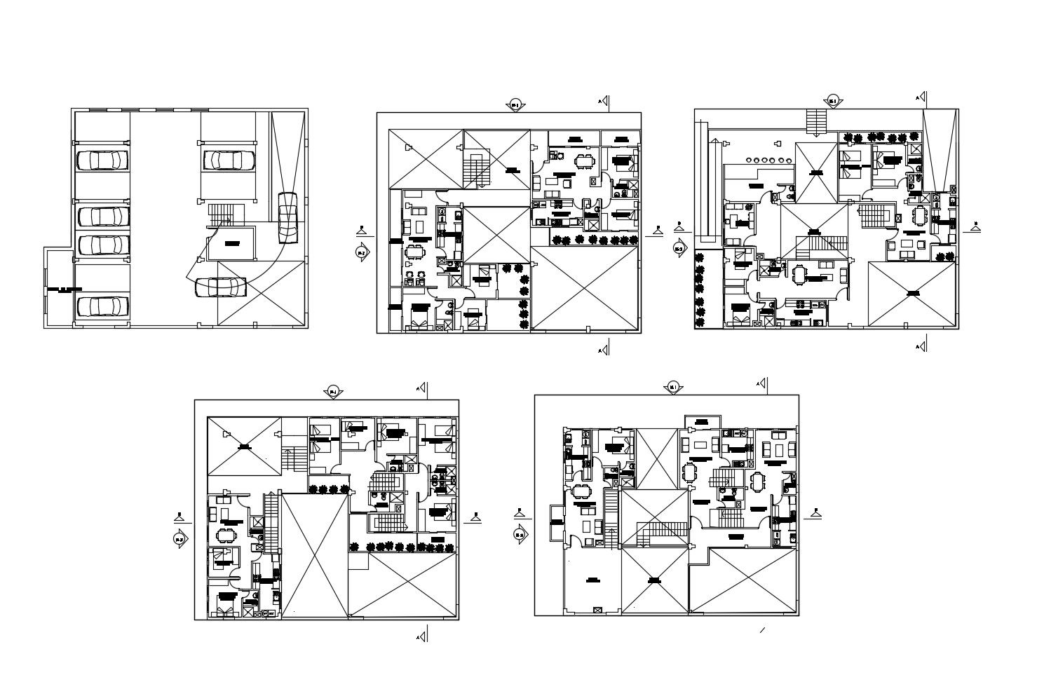
Floor plan of the apartment with detail dimension in AutoCAD
Description
Floor plan of the apartment with detail dimension in AutoCAD which includes detail of hall, bedroom, kitchen, dining area, bathroom, toilet, etc it also provides detail of furniture.

Uploaded by:
Eiz
Luna

