Architectural plan of the house with detail dimension in dwg file
Description
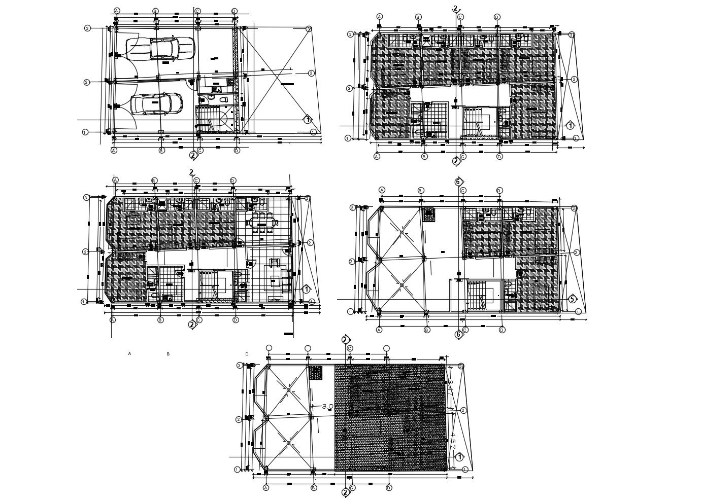
Architectural plan of the house with detail dimension in dwg file which provides detail of drawing room, bedroom, kitchen, dining area, bathroom, toilet, etc it also gives detail of terrace plan.

Uploaded by:
Eiz
Luna

