Section Drawing of the residential apartment with detail dimension in dwg file
Description
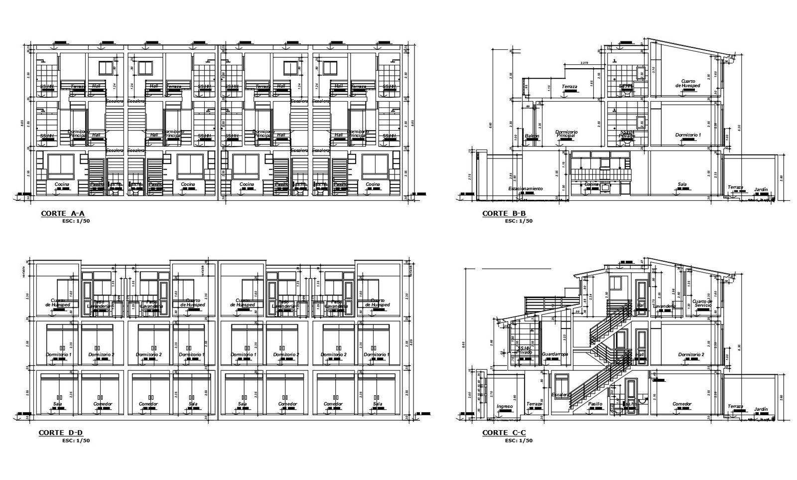
Section Drawing of the residential apartment with detail dimension in dwg file which includes detail of hall, bedroom, kitchen, etc it also gives detail of floor level.

Uploaded by:
Eiz
Luna

