Architectural plan of office building with detail dimension in autocad
Description
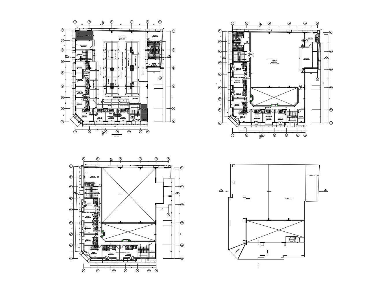
Architectural plan of office building with detail dimension in autocad which provide detail of front elevation, side elevation, detail of floor level, detail of office area, meeting room, wc and bath.

Uploaded by:
Eiz
Luna

