Layout plan of the house with detail dimension in AutoCAD
Description
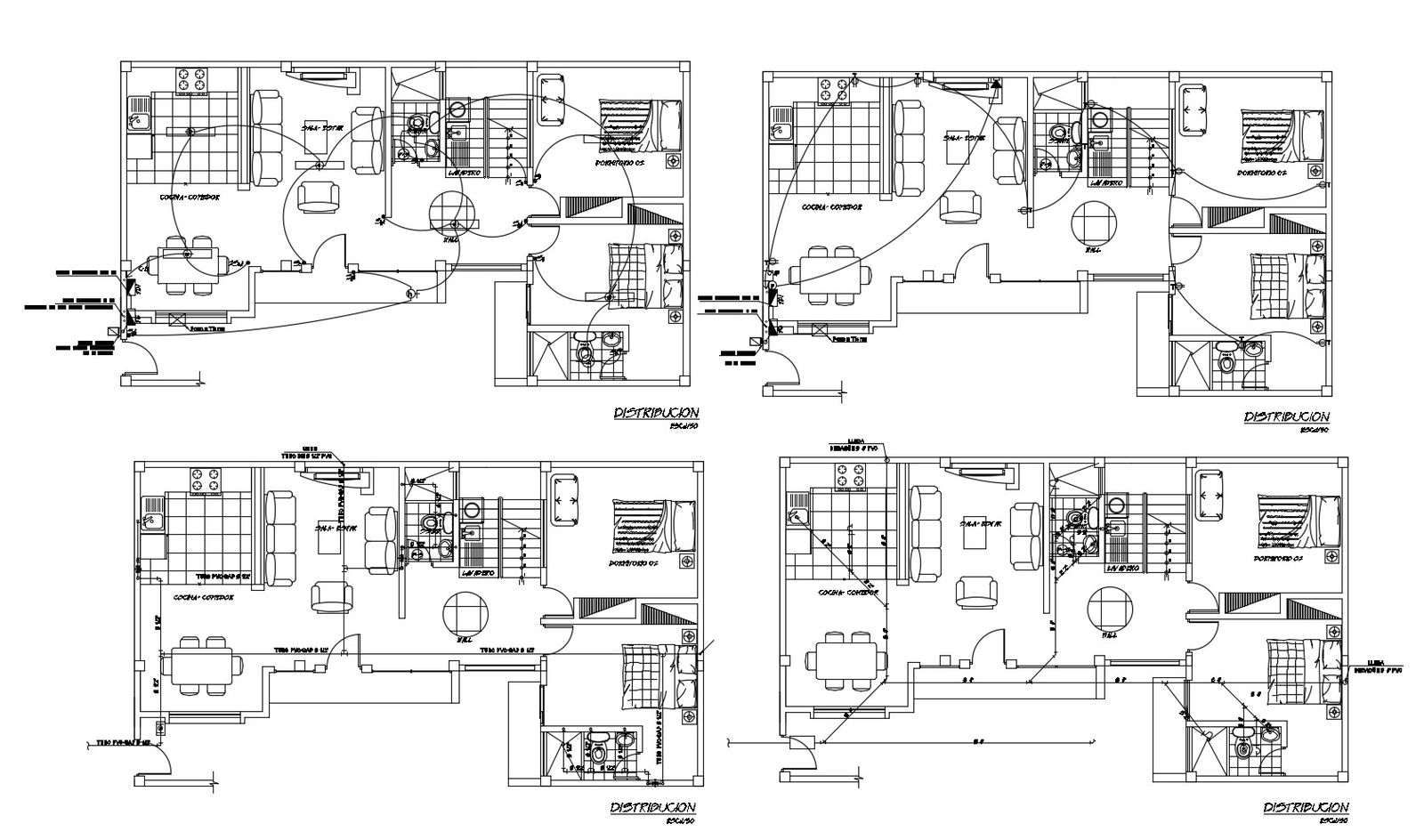
Layout plan of the house with detail dimension in AutoCAD which provide detail of the living room, bedroom, kitchen with dining area, bathroom, toilet, etc.

Uploaded by:
Eiz
Luna

Uploaded by:
Luna