LOGIN
HOME
CATEGORIES
UPLOAD FILE
PRICING
HOUSE PLAN
ABOUT US
CONTACT US
Autocad drawing of Commercial office
Home
Categories
Architecture
Corporate Building
Autocad drawing of Commercial office
Uploaded by:
K.H.J
Jani
View Profile
View Profile
Description
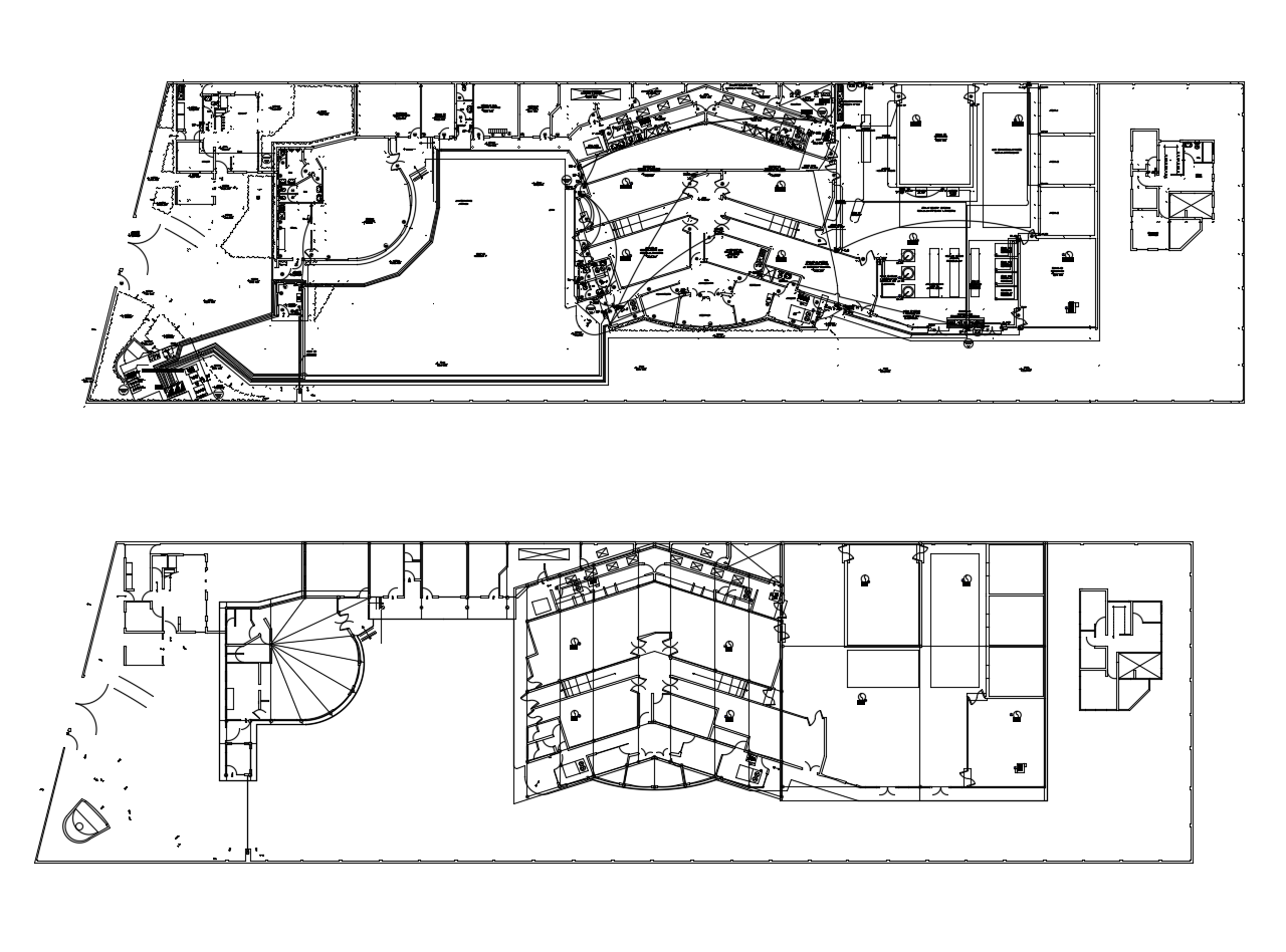
Autocad drawing of Commercial office it include ground floor plan, garden area, staff cabins, manager's cabin, workstation, etc
File Type:
DWG
File Size:
736 KB
Category::
Architecture
Sub Category::
Corporate Building
type:
Gold
Uploaded by:
K.H.J
Jani
View Profile
Download
Add to libary
find Latest
Related
Files