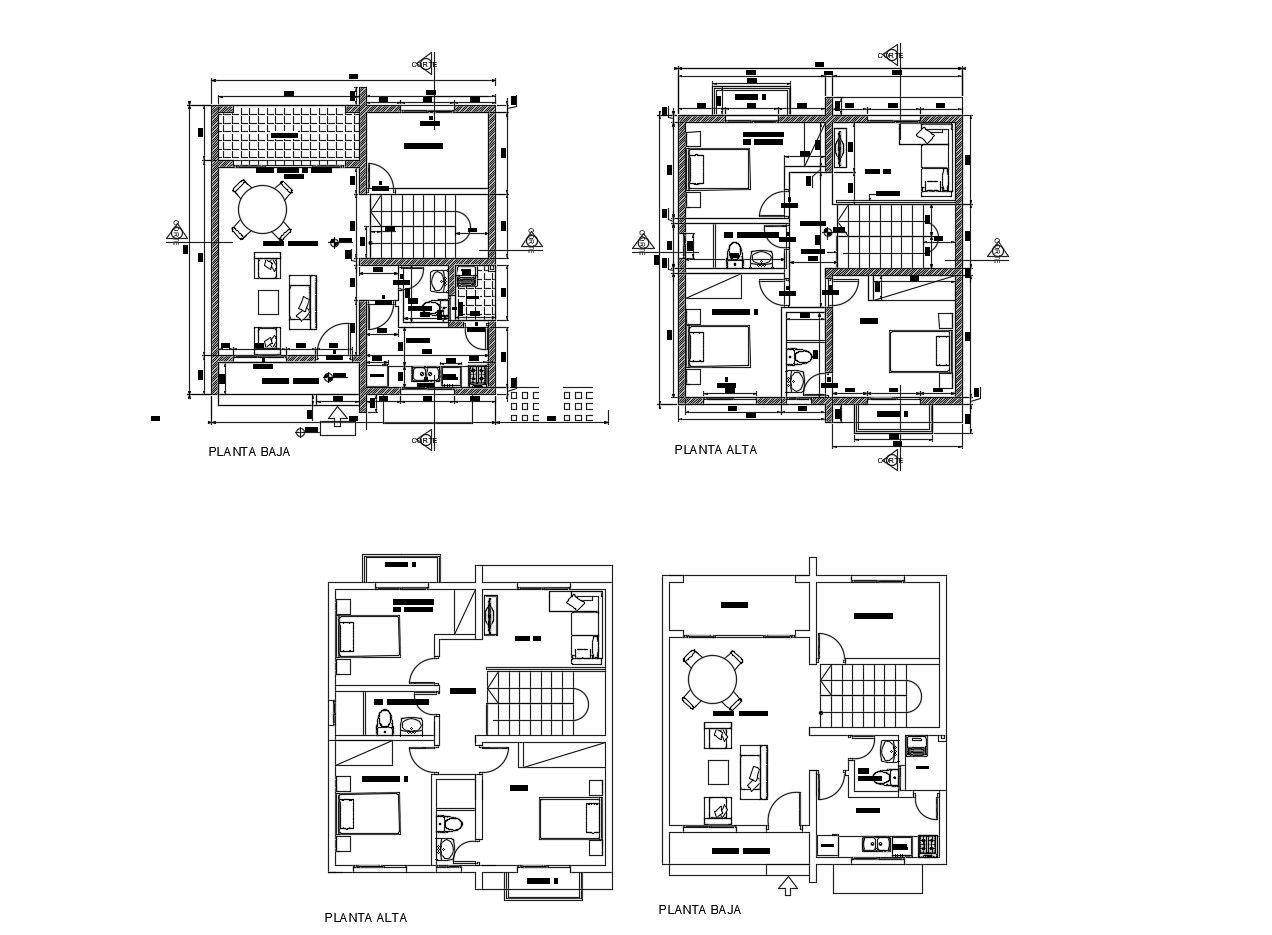
Plan of residential house 8.00mtr x 8.15mtr with detail dimension in AutoCAD
Description
Plan of residential house 8.00mtr x 8.15mtr with detail dimension in AutoCAD which provide detail of hall, bedroom, kitchen with dining area, bathroom, toilet, etc it also gives detail of furniture.

Uploaded by:
Eiz
Luna

