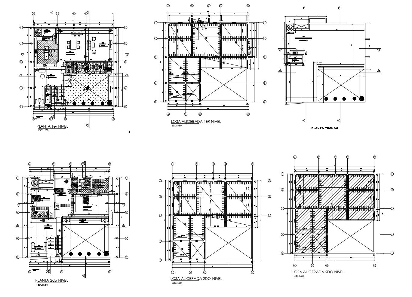
Architectural drawing of bungalow 17.13mtr x 17.00mtr with detail dimension in AutoCAD
Description
Architectural drawing of bungalow 17.13mtr x 17.00mtr with detail dimension in AutoCAD which includes detail of hall, bedroom, kitchen with dining area, bathroom, toilet, etc it also gives detail of roof plan.

Uploaded by:
Eiz
Luna

