Residential apartment with elevation and section in dwg file
Description
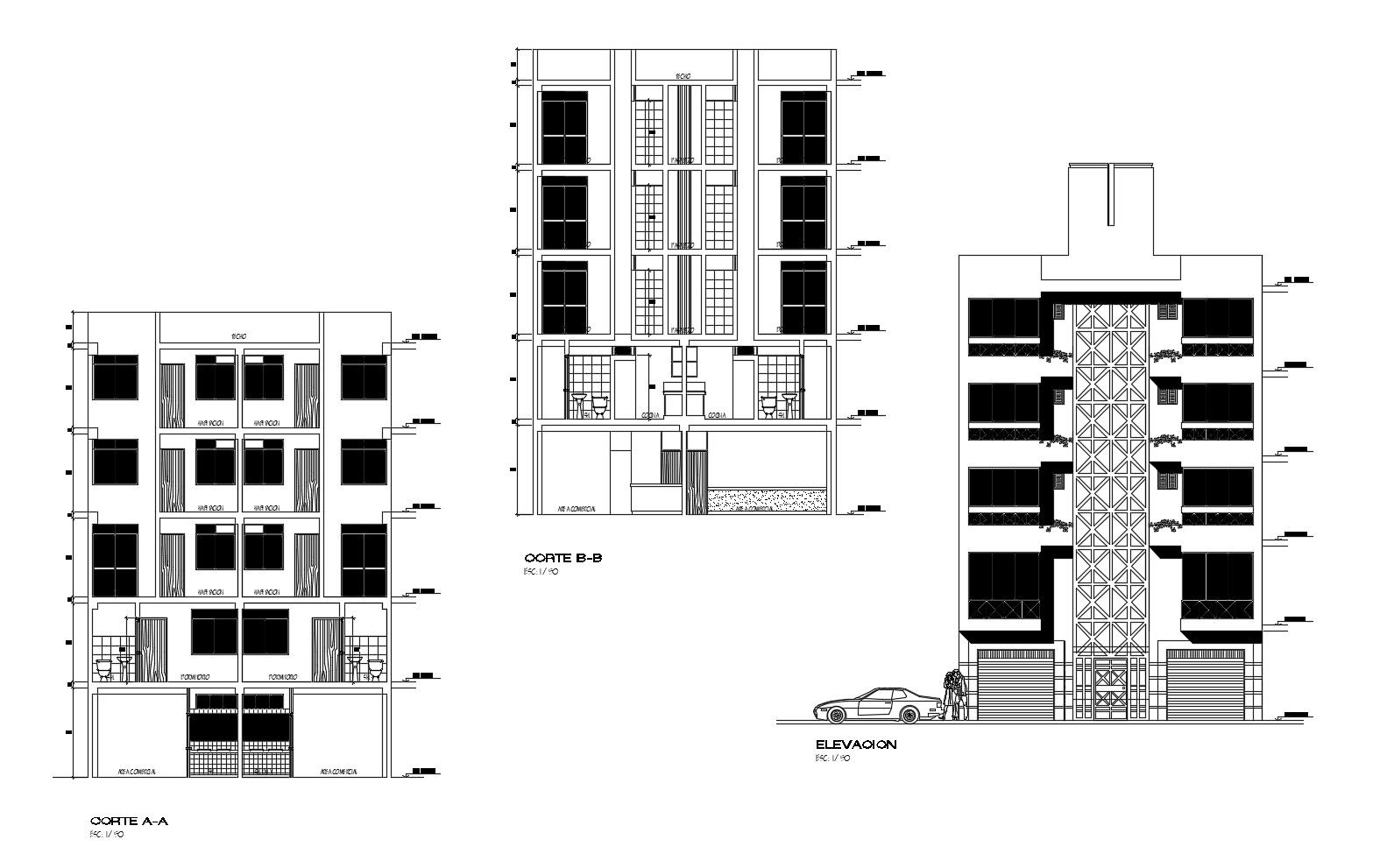
Residential apartment with elevation and section in dwg file which provides detail of front elevation, section details, detail of floor level.

Uploaded by:
Eiz
Luna

Uploaded by:
Luna