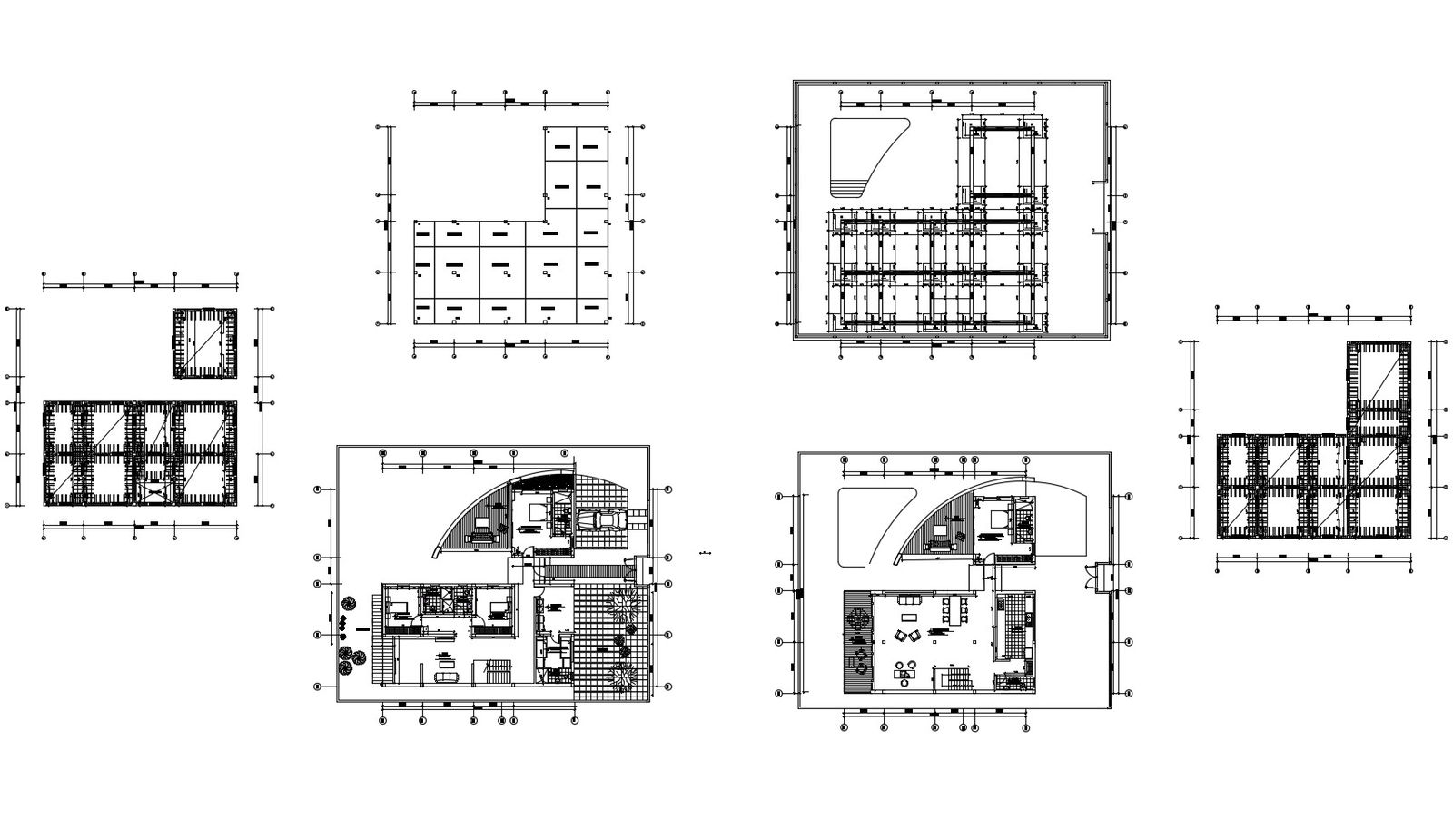
Architectural plan of house 16.89mtr x 17.33mtr with detail dimension in AutoCAD
Description
Architectural plan of house 16.89mtr x 17.33mtr with detail dimension in AutoCAD which provide detail of hall, bedroom, kitchen with dining area, bathroom, toilet, etc it also gives detail of furniture.

Uploaded by:
Eiz
Luna

