LOGIN
HOME
CATEGORIES
UPLOAD FILE
PRICING
HOUSE PLAN
ABOUT US
CONTACT US
Autocad drawing of residential house
Home
Categories
Architecture
House Plan
Autocad drawing of residential house
Uploaded by:
K.H.J
Jani
View Profile
View Profile
Description
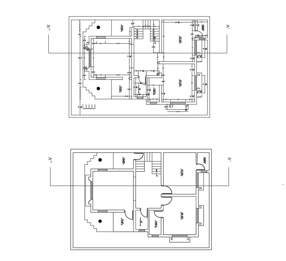
Autocad drawing of residential house it include ground floor layout, first floor layout it also include bedrooms,kitchen, drawing room,toilets,balcony, etc
File Type:
DWG
File Size:
390 KB
Category::
Architecture
Sub Category::
House Plan
type:
Gold
Uploaded by:
K.H.J
Jani
View Profile
Download
Add to libary
find Latest
Related
Files