LOGIN
HOME
CATEGORIES
UPLOAD FILE
PRICING
HOUSE PLAN
ABOUT US
CONTACT US
Autocad drawing of residential apartment
Home
Categories
Architecture
Apartment Drawing
Autocad drawing of residential apartment
Uploaded by:
K.H.J
Jani
View Profile
View Profile
Description
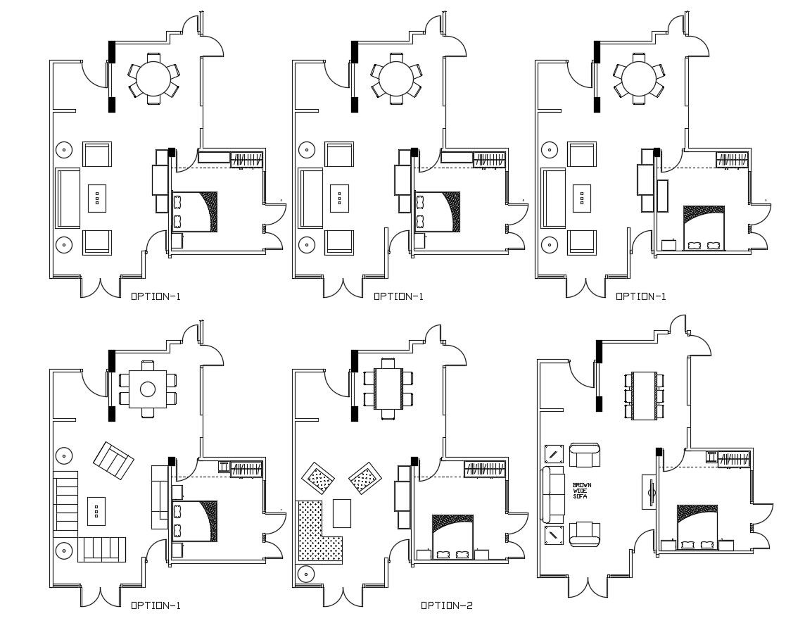
Autocad drawing of residential apartment it include alternate options of living area,bedroom, dinning area, etc
File Type:
DWG
File Size:
107 KB
Category::
Architecture
Sub Category::
Apartment Drawing
type:
Gold
Uploaded by:
K.H.J
Jani
View Profile
Download
Add to libary
find Latest
Related
Files