Residential house plan 1500 square feet
Description
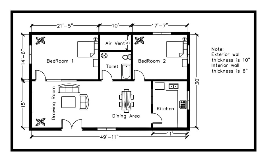
Residential house 1500 square feet in autocad it include floor plan layout,furniture layout, it also include kitchen,dinning area,bedroom,store,pooja room, toilets, wash area,etc

Uploaded by:
VIJAYAPRABAKAR
SUDALAIMANI

