LOGIN
HOME
CATEGORIES
UPLOAD FILE
PRICING
HOUSE PLAN
ABOUT US
CONTACT US
Autocad drawing of bathroom with sections
Home
Categories
Interior Design
Bathroom Interior
Autocad drawing of bathroom with sections
Uploaded by:
K.H.J
Jani
View Profile
View Profile
Description
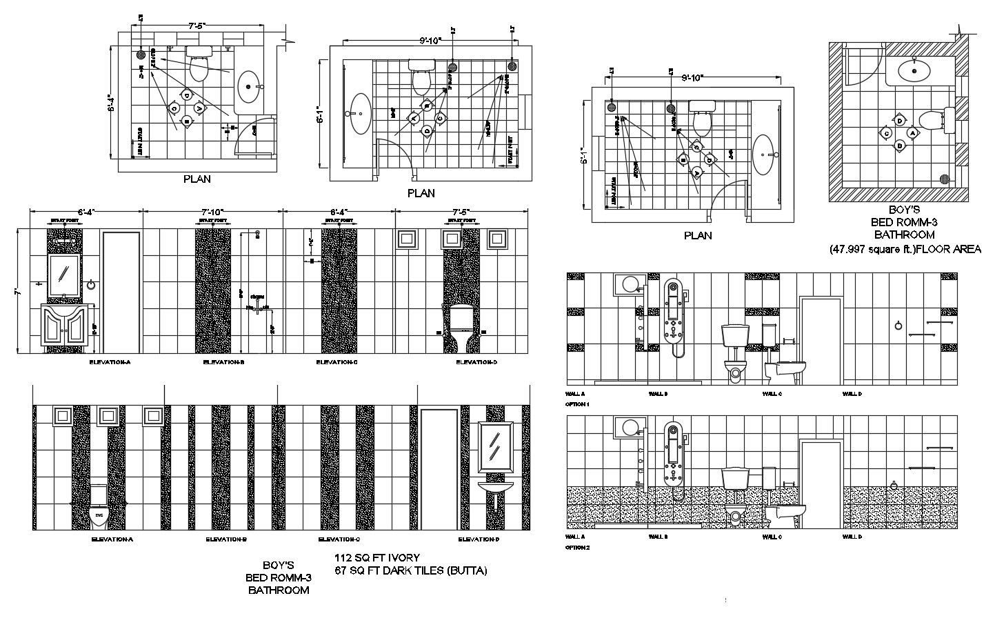
Autocad drawing of bathroom with sections it include bathroom layout,elevation,wall tiles, floor plan, shower area, basin area, etc
File Type:
DWG
File Size:
386 KB
Category::
Interior Design
Sub Category::
Bathroom Interior
type:
Gold
Uploaded by:
K.H.J
Jani
View Profile
Download
Add to libary
find Latest
Related
Files