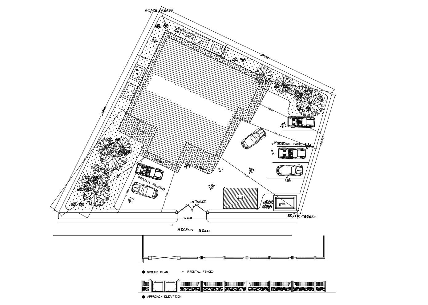
Site layout plan of residential building with detail dimension in dwg file
Description
Site layout plan of residential building with detail dimension in dwg file it provides detail of site area, parking details, garden area, etc it also gives detail of fencing.

Uploaded by:
Eiz
Luna

