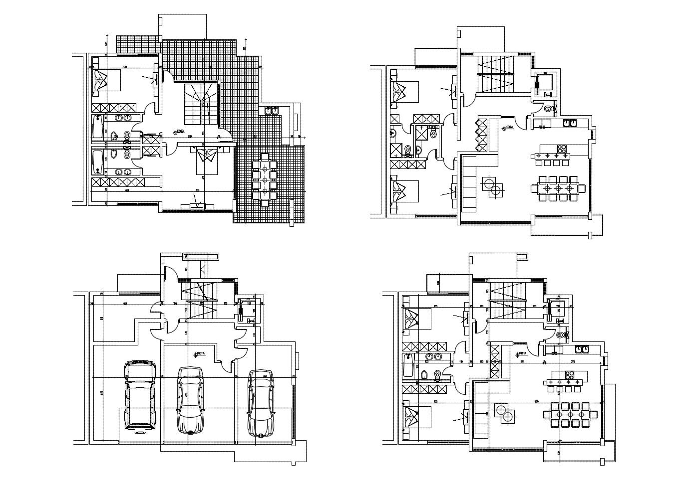
Architectural plan of house 17.75mtr x 12.80mtr with detail dimension in dwg file
Description
Architectural plan of house 17.75mtr x 12.80mtr with detail dimension in dwg file which provides detail of hall, bedroom, kitchen, dining area, bathroom, toilet, etc it also gives detail of the parking plan.

Uploaded by:
Eiz
Luna

