Floor plan of the bungalow with detail dimension in AutoCAD
Description
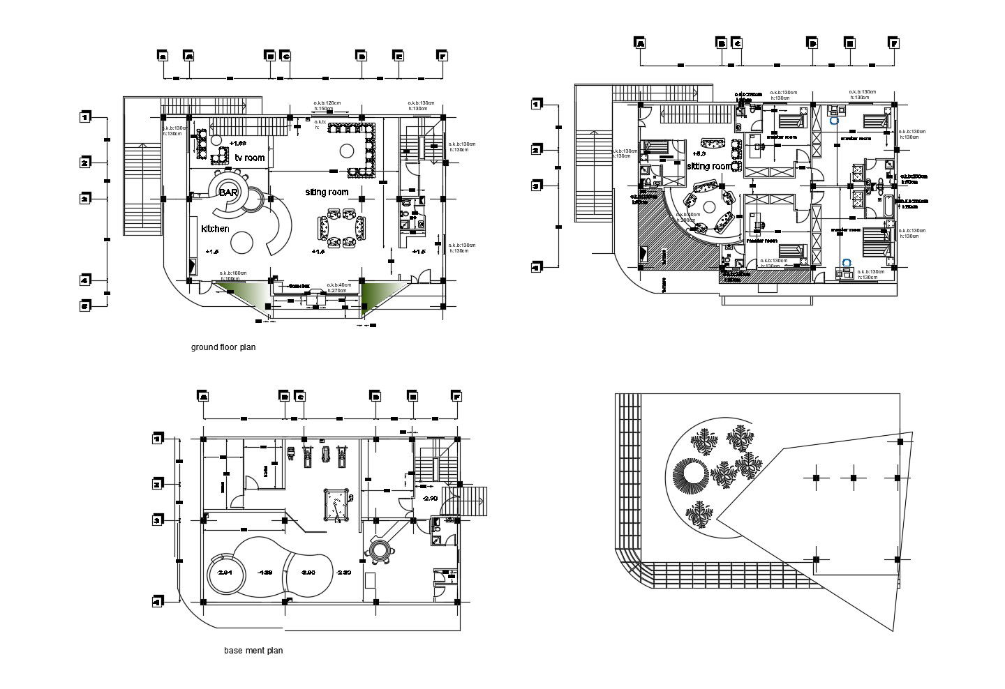
Floor plan of the bungalow with detail dimension in AutoCAD which provide detail of the sitting room, master bedroom, kitchen, dining area, bathroom, toilet, etc it also gives detail of basement plan.

Uploaded by:
Eiz
Luna

