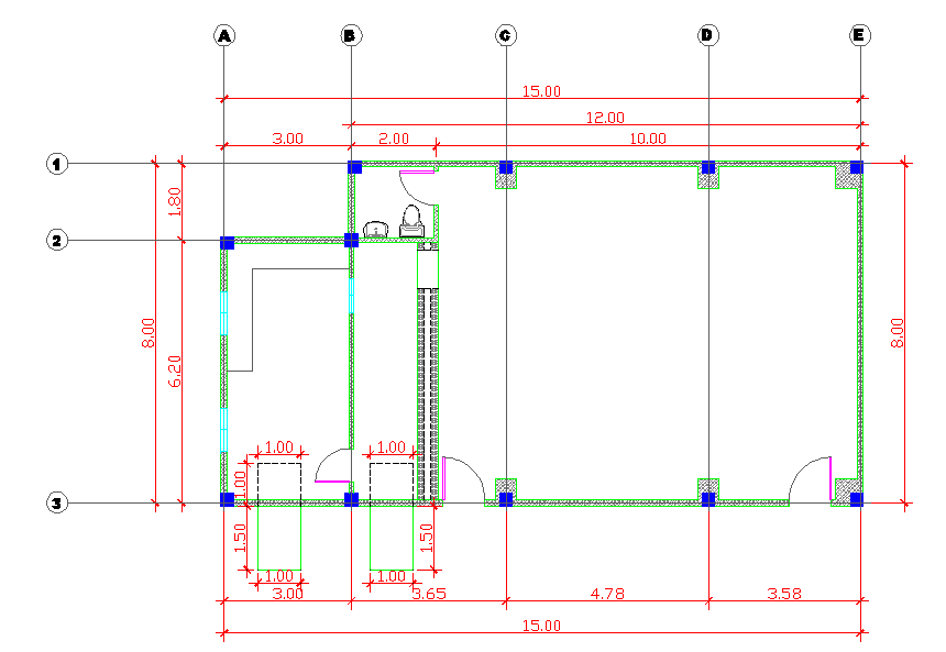
simple room Plan
Description
A room is any distinguishable space within a structure. The aforementioned Akrotiri excavations reveal rooms sometimes built above other rooms connected by staircases, bathrooms with alabaster appliances such as washbasins. simple room Plan DWG file, simple room Plan Detail file.

Uploaded by:
Harriet
Burrows
