Architectural plan of the hotel with detail dimension in dwg file
Description
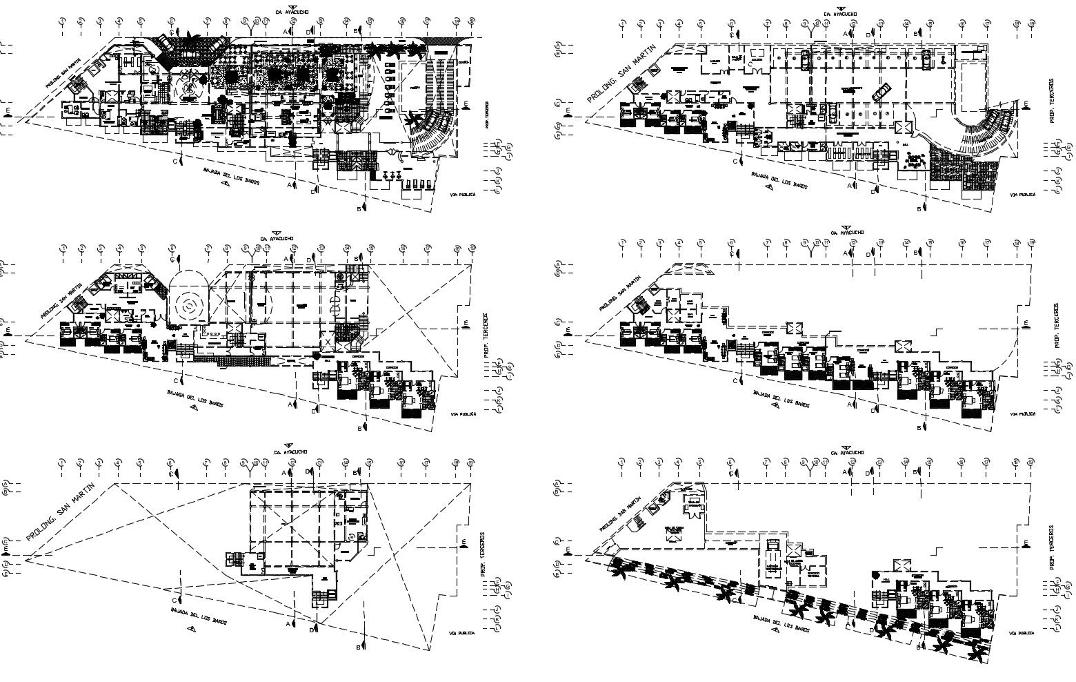
Architectural plan of the hotel with detail dimension in dwg file which provides detail of hall, reception area, cafe area, restaurant area, kitchen, waiting area, garden, parking space, etc.

Uploaded by:
Eiz
Luna

