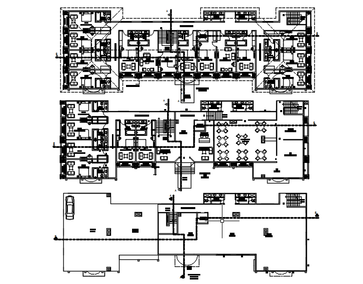
Plan of the residential apartment with elevation in dwg file
Description
Plan of the residential apartment with elevation in dwg file which includes detail of hall, bedroom, kitchen, dining area, bathroom, toilet, etc.

Uploaded by:
Eiz
Luna

Uploaded by:
Luna