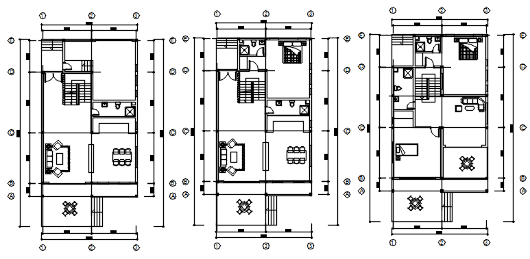
Floor plan of residential house 9.000mtr x 17.700 with detail dimension in dwg file
Description
Floor plan of residential house 9.000mtr x 17.700 with detail dimension in dwg file which provides detail of Drawing room, bedroom, kitchen with dining area, bathroom, toilet, etc.

Uploaded by:
Eiz
Luna

