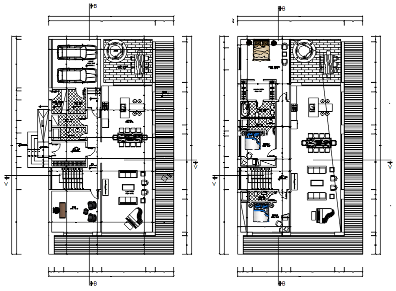
House plan 13.50mtr x 23.50mtr with detail dimension in AutoCAD
Description
House plan 13.50mtr x 23.50mtr with detail dimension in AutoCAD which provide detail of hall, bedroom, kitchen with dining room, bathroom and toilet, etc it also gives detail of furniture.

Uploaded by:
Eiz
Luna

