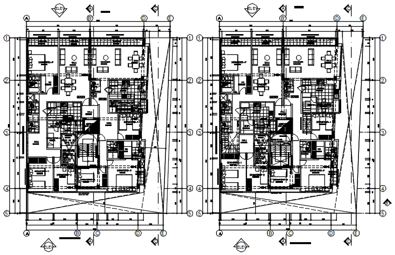
Plan of the house with detail dimension in dwg file
Description
Plan of the house with detail dimension in dwg file which provides detail of drawing room, bedroom, kitchen with dining area, bathroom, toilet, etc.

Uploaded by:
Eiz
Luna

Uploaded by:
Luna