LOGIN
HOME
CATEGORIES
UPLOAD FILE
PRICING
HOUSE PLAN
ABOUT US
CONTACT US
Hostel drawing in dwg file
Home
Categories
Architecture
School & Hostel
Hostel drawing in dwg file
Uploaded by:
K.H.J
Jani
View Profile
View Profile
Description
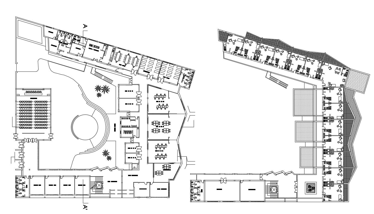
Hostel drawing in dwg file it include ground floor plan, first floor plan, it also include canteen area, kitchen, auditorium, etc
File Type:
DWG
File Size:
1.2 MB
Category::
Architecture
Sub Category::
School & Hostel
type:
Gold
Uploaded by:
K.H.J
Jani
View Profile
Download
Add to libary
find Latest
Related
Files