Residential house plan 15mtr x 19mtr with detail dimension in dwg file
Description
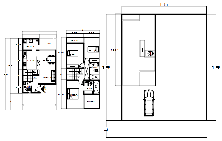
Residential house plan 15mtr x 19mtr with detail dimension in dwg file which provides detail of hall, bedroom, kitchen with dining area, bathroom, toilet, parking space, etc it also gives detail of furniture.

Uploaded by:
Eiz
Luna

