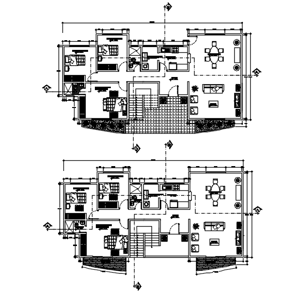
Floor plan of house design with furniture details in AutoCAD
Description
Floor plan of house design with furniture details in AutoCAD which provide detail of drawing room, bedroom, kitchen, dining room, bathroom, toilet, etc.

Uploaded by:
Eiz
Luna

Uploaded by:
Luna