LOGIN
HOME
CATEGORIES
UPLOAD FILE
PRICING
HOUSE PLAN
ABOUT US
CONTACT US
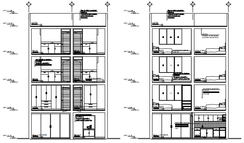
4 storey residential apartment in dwg file
Home
Categories
Architecture
Apartment Drawing
4 storey residential apartment in dwg file
Uploaded by:
Eiz
Luna
View Profile
View Profile
Description
4 storey residential apartment in dwg file which provides detail of different section, detail of detail of floor level, etc.
File Type:
DWG
File Size:
429 KB
Category::
Architecture
Sub Category::
Apartment Drawing
type:
Gold
Uploaded by:
Eiz
Luna
View Profile
Download
Add to libary
find Latest
Related
Files