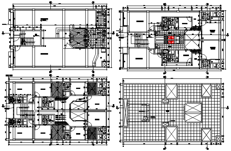
Architectural plan of house 16.00mtr x 10.00mtr with detail dimension in dwg file
Description
Architectural plan of house 16.00mtr x 10.00mtr with detail dimension in dwg file which provides detail of drawing room, bedroom, kitchen, dining room, bathroom, toilet, etc it also gives detail of terrace plan.

Uploaded by:
Eiz
Luna

