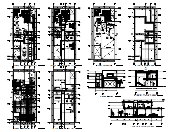
Architectural plan of house 10.00mtr x 24.00mtr with elevation and section in dwg file
Description
Architectural plan of house 10.00mtr x 24.00mtr with elevation and section in dwg file which provides detail of drawing room, bedroom, kitchen, dining room, bathroom, toilet, etc it also gives detail of foundation plan.

Uploaded by:
Eiz
Luna

