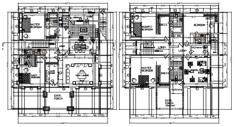
Floor plan of house 16.375mtr x 17.825mtr with detail dimension in AutoCAD
Description
Floor plan of house 16.375mtr x 17.825mtr with detail dimension in AutoCAD which includes detail of drawing room, bedroom, master bedroom, kitchen, dining room, bathroom, toilet, porch, etc.

Uploaded by:
Eiz
Luna
