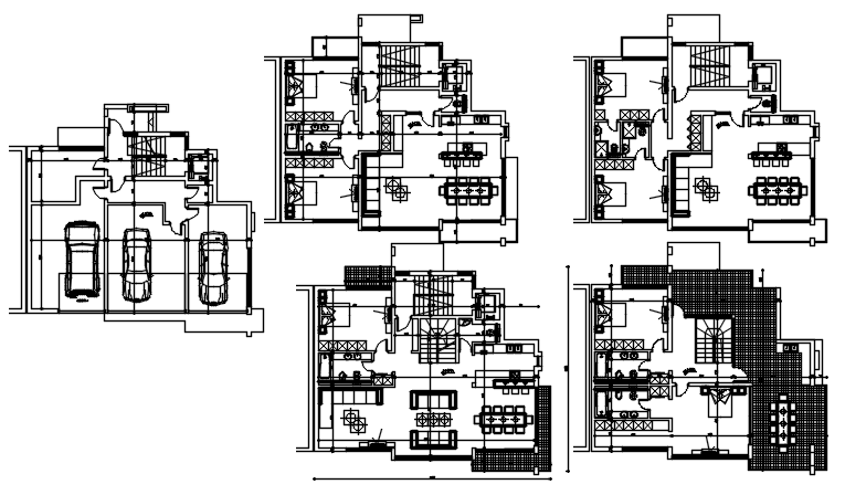
Plan of Apartment 14.75mtr x 12.80mtr with furniture details in AutoCAD
Description
Plan of Apartment 14.75mtr x 12.80mtr with furniture details in AutoCAD which includes detail of drawing room, bedroom, kitchen, dining room, bathroom, toilet, etc it also gives detail of the parking plan.

Uploaded by:
Eiz
Luna

