Ground floor plan of the bungalow with detail dimension in dwg file
Description
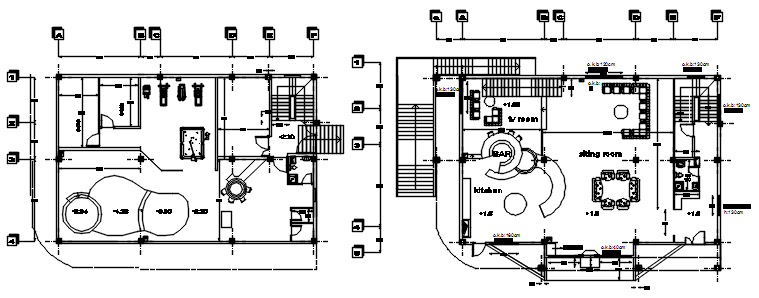
Ground floor plan of the bungalow with detail dimension in dwg file which provides detail of hall, sitting room, tv room, kitchen, bathroom, toilet, etc it also gives detail of the basement plan.

Uploaded by:
Eiz
Luna

