Floor plan of the house with furniture details in dwg file
Description
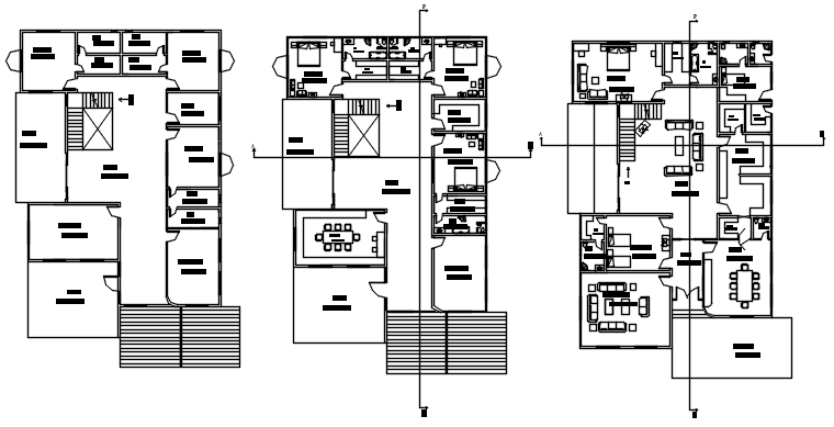
Floor plan of the house with furniture details in dwg file which provide detail of drawing room, bedroom, kitchen, dining room, bathroom, toilet, etc.

Uploaded by:
Eiz
Luna

Uploaded by:
Luna