LOGIN
HOME
CATEGORIES
UPLOAD FILE
PRICING
HOUSE PLAN
ABOUT US
CONTACT US
Autocad drawing of residential house
Home
Categories
Architecture
House Plan
Autocad drawing of residential house
Uploaded by:
K.H.J
Jani
View Profile
View Profile
Description
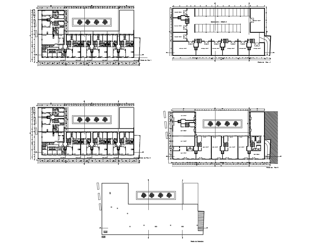
Autocad drawing of residential house it include foundation plan,site plan,ground floor layout,second floor layout,etc
File Type:
DWG
File Size:
2.4 MB
Category::
Architecture
Sub Category::
House Plan
type:
Gold
Uploaded by:
K.H.J
Jani
View Profile
Download
Add to libary
find Latest
Related
Files