LOGIN
HOME
CATEGORIES
UPLOAD FILE
PRICING
HOUSE PLAN
ABOUT US
CONTACT US
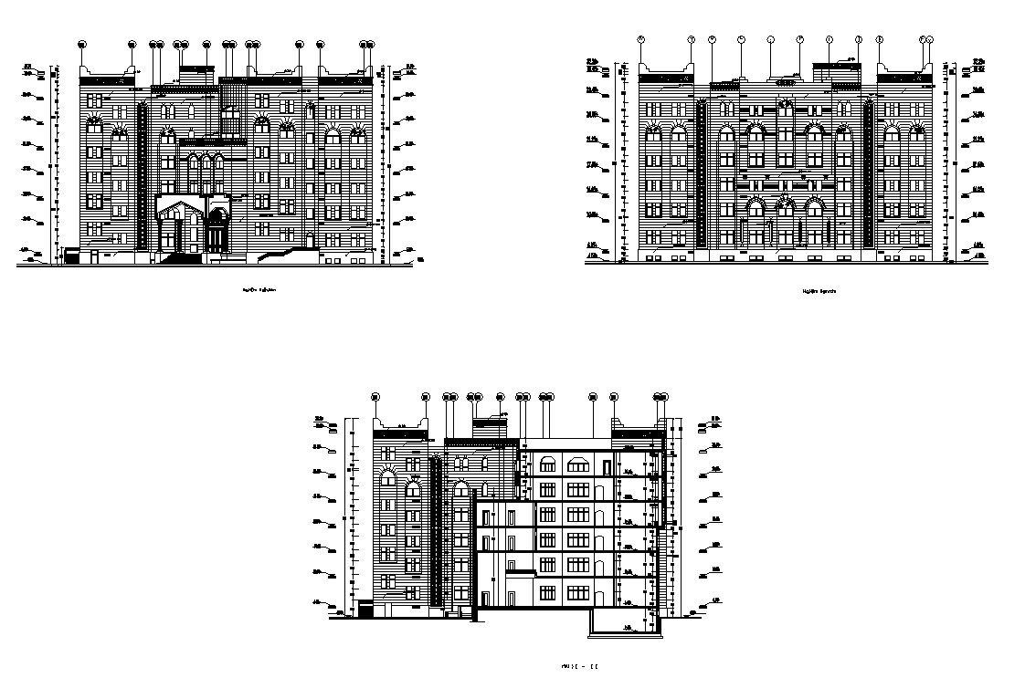
Autocad drawing of building elevation
Home
Categories
Architecture
High Rise Building
Autocad drawing of building elevation
Uploaded by:
K.H.J
Jani
View Profile
View Profile
Description
Autocad drawing of building elevation it include ground floor layout,first floor layout, basement floor,terrace area, etc
File Type:
DWG
File Size:
2.3 MB
Category::
Architecture
Sub Category::
High Rise Building
type:
Gold
Uploaded by:
K.H.J
Jani
View Profile
Download
Add to libary
find Latest
Related
Files